Forme e linguaggi dell’innovazione architettonica
Forme e linguaggi dell’innovazione architettonica
Forme e linguaggi
dell’innovazione architettonica
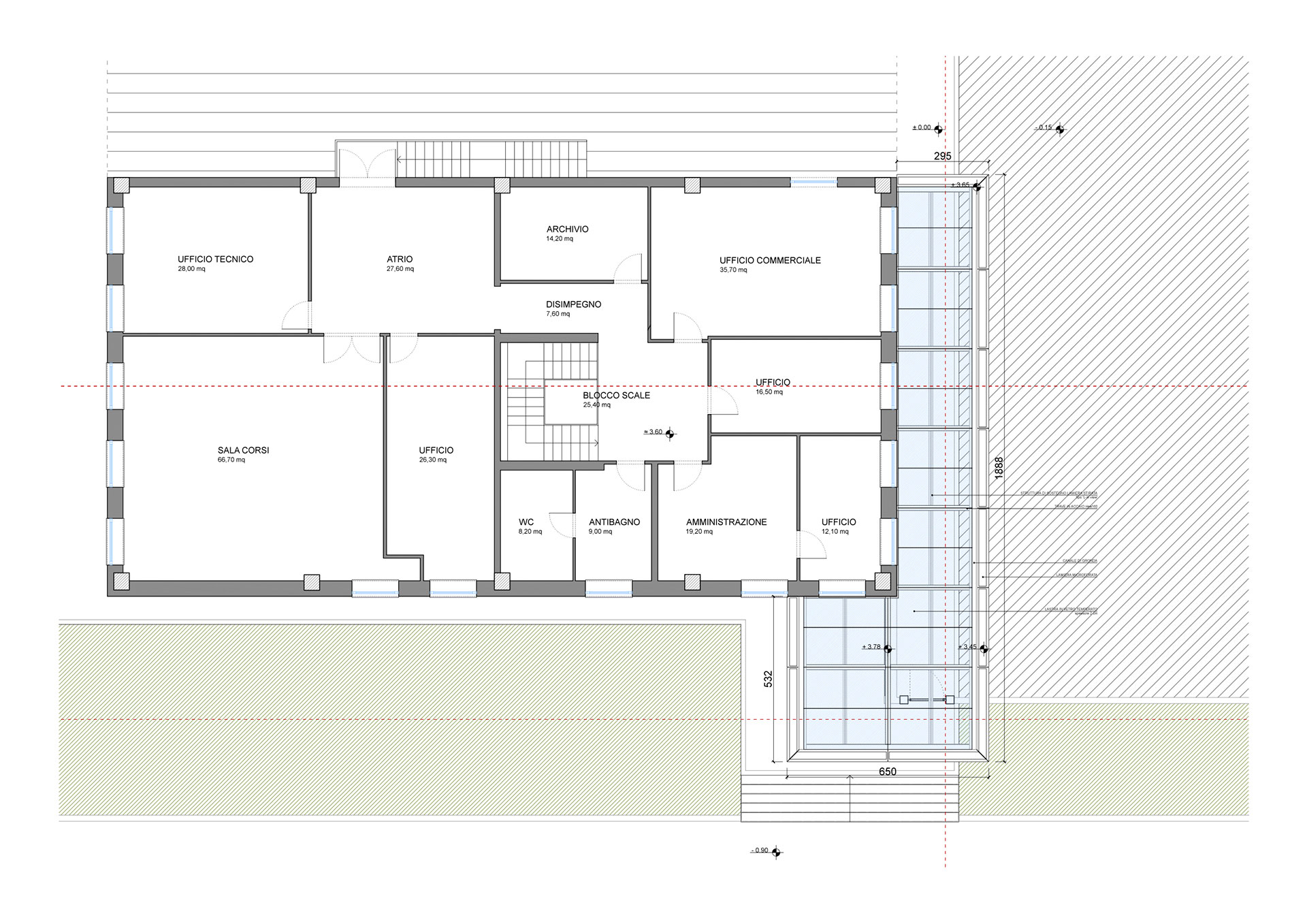
RM Manfredi Factory - Headquarter entrance renovation
RM Manfredi Factory - Headquarter entrance renovation
RM Manfredi Factory - Headquarter entrance renovation







Sialia Gourmet
Grocery, winery, gourmet experiences in Ascona
Decelia Living
New residences of contemporary living
Automotive Brand Residences
Branded design of private villas
Armani Casa Residences Moscow
Parking design
Elie Saab branded projects
Interior design
Lake view residential complex
Building renovation
Ester House
New construction of a private villa
CM Liberty villa
Facade restoration and landscape design
Far Rubinetterie Stand
MCE 2014
Garden loft
Private house interior design
RM Manfredi Factory
Headquarter entrance renovation
CZ Apartment
Private house interior design
Osteria Ca' Bianca 1905
Restaurant renovation
RV Winter garden
Expansion of a private villa
VVF Lecco fire station
Competition for a new headquarter
MZ Apartment
Private house interior design